Продукти
НАЧАЛО > Продукти
Продукти
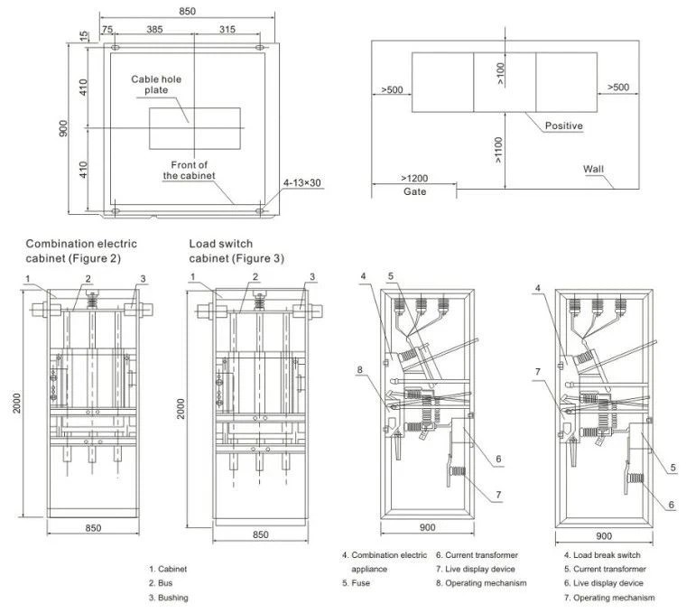
35kV фиксирана затворена пръстеновидна разпределителна апаратура за разпределение
  • 35kV фиксирана затворена пръстеновидна разпределителна апаратура за разпределение35kV фиксирана затворена пръстеновидна разпределителна апаратура за разпределение

35kV фиксирана затворена пръстеновидна разпределителна апаратура за разпределение

Comewill е професионален производител в Китай. Нашата 35kV фиксирана затворена пръстеновидна разпределителна уредба за разпределение (наричана по-нататък „главна част на пръстена“) за разпределение на електроенергия. Това е разпределителна апаратура за високо напрежение, специално проектирана за системи за разпределение на електроенергия, подходяща за нуждите на доставките и избора на енергийни инфраструктурни проекти и е идеален избор за решения за обществени поръчки.

Като основно оборудване за контрол и защита на разпределителната мрежа, висококачествените 35 kV фиксирани затворени пръстеновидни разпределителни уреди за разпределение, произведени в Китай, могат стабилно да извеждат надеждна мощност в различни сценарии на приложение, като проекти за изграждане и обновяване на градска електрическа мрежа, промишлени и минни предприятия, високи сгради и обществени съоръжения, които напълно отговарят на основните изисквания на купувачите за производителност на оборудването.

Този пръстеновиден основен блок с фиксиран дизайн се превърна в предпочитан продукт за снабдяване на модерна електроразпределителна система, като ви предлага рентабилна конфигурация на енергийна инфраструктура.

Технически данни

Сериен номер Артикул единица данни
1 Номинално напрежение kV 12 40.5
2 Номинална честота Hz 50/60
3 Номинален ток A 630 630/1250
4 Номинална честота на мощността, издържано напрежение (1 мин.) Фази и към земя кв 42 95
Изолационни разстояния 48 118
Номинален импулс на мълния, издържано на напрежение Фази и към земя 75 185
Изолационни разстояния 85 215
Устойчиво напрежение на мощностна честота (контролна и спомагателна верига) 2
5 Номинален краткотраен ток на устойчивост kA 20/25 31.5
6 Номинален пиков ток на устойчивост kA 50/63 80
7 Продължителност на номиналния ток на късо съединение s 4 4
8 Номинален ток на прекъсване на късо съединение kA 20/25 31.5
9 Номинален ток на късо съединение kA 50/63 80
10 Продължителност на дъгата s 1 1
11 Номинална работна последователност
0-0,3s-CO-3min-CO
12 Изолационен газ
SF6
13 Годишен процент на течове % ≤ 0,01
14 Стандартна степен на защита Запечатана газова кутия
IP67
Корпус на разпределителна уредба IP4X
15 Номинално инфлационно налягане MPa 0.03
Минимално функционално ниво на налягане 0.01
16 Номинално захранващо напрежение на спомагателната верига V DC 24, 48, 110, 220, AC220
17 Механичен живот Автоматичен прекъсвач Операция 10000 11000
Изолационен превключвател 5000 3000
Заземител 5000 3000
18 Електрическа издръжливост на прекъсвача Операция 30 (E2)
19 Загуба на непрекъснатост на услугата
LSC2

Параметри на техническата работна среда

·Температура на околната среда: -10°C ~ +40°C
·Надморска височина: Високо напрежение ≤1000m; Ниско напрежение ≤2500m (наличен персонализиран дизайн за закупуване на извънобхват)
· Относителна влажност: ≤85%
·Сеизмичен интензитет: ≤ Магнитуд 8
· Предпоставки за околната среда: Няма опасност от пожар/експлозия, няма силно замърсяване, няма химическа корозия, няма силни вибрации (обектът за доставка трябва да отговаря на тези)

Чрез неуморните усилия на всички наши служители, ние непрекъснато подобряваме нашето управление на качеството, за да гарантираме, че нашите 35kV фиксирани затворени пръстеновидни разпределителни уреди за разпределение остават източник на доверие за нашите клиенти. Нашата цел е да предоставим на клиентите най-изчерпателната система за тестване и най-подходящите решения, като увеличим максимално удовлетворението на клиентите. Ние се придържаме към принципите клиент на първо място, пазарна ориентация и ефективност и непрекъснато култивираме нашия талант.

Hot Tags: основен блок с метален затворен пръстен, Китай, производители, фабрика, цена, превключвател на въздушен прекъсвач 630A, вътрешен 24kv газ LBS, превключвател на разединител SF6, вакуумен прекъсвач на открито с порцеланово покритие, еднофазен трансформатор на напрежение 20kV, разпределителна апаратура на прекъсвача с въздушна изолация

Горещи маркери: 35kV фиксирана затворена пръстеновидна комутационна апаратура за разпределение, Китай, производител, доставчик, фабрика, търговия на едро, персонализирано, на склад, произведено в Китай, ниска цена, качество
Изпратете запитване
Информация за контакт
  • Адрес

    No.777 Wanweng Road, Wengyang Sub-district, Yueqing City, Wenzhou City, Zhejiang Province, Китай

  • Електронна поща

    hannah@comewill.com

Изпратете запитване до Comewill за разпределителна апаратура, вакуумни прекъсвачи, токов трансформатор. Получете персонализирани оферти, ниски цени или експертна поддръжка от нашия фабричен екип в Китай.
X
Ние използваме бисквитки, за да ви предложим по-добро сърфиране, да анализираме трафика на сайта и да персонализираме съдържанието. Използвайки този сайт, вие се съгласявате с използването на бисквитки от наша страна. Политика за поверителност
Отхвърляне Приеми